tunisie ecole e12c
Bienvenue sur Tunisie Annonce. > Vous n'êtes pas connecté.
Accueil >Annonces Immobilier >Bureau en 11 espaces500mcunifcu227 ref2327a à Zone urbaine nord
[Réf:3455217] Bureau en 11 espaces500mcunifcu227 ref2327a
Catégorie Offres  > Bureaux & Commerces  > Bureau
Localisation Tunisie  > Tunis  > Cite El Khadra  > Zone urbaine nord
Surface 500 m² 
Prix 9 000 Dinar Tunisien (TND)  Convertir
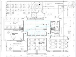
Texte ifc  vous propose à la location un bureau d?une superficie de 500m² situé dans un immeuble au centre urbain nord.

il est composé d?un accueil un open space neuf bureaux deux blocs sanitaires et une kitchenette.

il est équipé d?un système de climatisation central.

quatre places parking sont à votre disposition.

le loyer est de  9000dt/mois (htva) retenue à la source incluse.

pour une visite ou pour plus de renseignement n?hésitez pas à nous contacter au numéro suivant  (216)

notre agence spécialisée en immobilier professionnel a plus de 300 bureaux actuellement disponibles parmi lesquels certainement votre futur adresse. pour consulter toutes nos offres visitez notre site web 11 pieces.
Réf Annonceur #3455217#
Insérée le 30/03/2026 Modifiée le 30/03/2026
Les Photos
Cite El Khadra Zone urbaine nord Bureaux & Commerces Bureau Bureau en 11 espaces500mcunifcu227 ref2327a
Cite El Khadra Zone urbaine nord Bureaux & Commerces Bureau Bureau en 11 espaces500mcunifcu227 ref2327a
  Bureaux & Commerces Bureau Bureau en 11 espaces500mcunifcu227 ref2327a Cite El Khadra  
Contact : Professionnel
    Agence immobilière IFC
    8, Rue du 2 Mars 1934
    2070 La Marsa
  • Tél : 216 71741764
  • Mob : 58 58 50 50
  • Mail : Envoyer un Message
Actions
3 000 Dinars
Immobilier - Offres - Bureaux & Commerces - Bureau
ifc vous propose  à la location  un bureau d?une superficie de 190m² situé dans un immeuble bureautique sécurisé à montplaisir  . cet espace se compose d?un accueil un open space un bureau deux blo ...
5 000 Dinars
Immobilier - Offres - Bureaux & Commerces - Bureau
ifc vous propose  à la location  un bureau d?une superficie de 336m² situé dans un immeuble bureautique sécurisé à montplaisir  . cet espace se compose d?un accueil trois open space un bureau trois ...
2 500 Dinars
Immobilier - Offres - Bureaux & Commerces - Bureau
a #louer au #centreurbainnord un #bureau de140m² situé à proximité de toutes les commodités dans un immeuble à usage #bureautique avec ascenseur, il est composé de 5 spacieux pièces(open-space et 4 bu ...
2 000 Dinars
Immobilier - Offres - Bureaux & Commerces - Bureau
appartement ht stdg,2gd bureaux,reception spacieuse,2wc,kitchinette ,placards,clim central chaud et froid,parking s sol 4 assenceurs agence ...
9 000 Dinars
Immobilier - Offres - Bureaux & Commerces - Bureau
ifc  vous propose à la location un bureau d?une superficie de 500m² situé dans un immeuble au centre urbain nord. il est composé d?un accueil un open space neuf bureaux deux blocs sanitaires et une ...
Bureaux & Commerces Bureau en  Tunisie
cache : 11,44 min - Details : 0 min
VOus pouvez passer vos annonces sur tunisie annonce, annonces Tunisie, petites annonces Tunisie, Tunisie immobilier, Tunisie annonces, passer annonce gratuite, petites annonces, passer une annonce, annonces immobilier, location, vente , achat, maison, appartement, louer, vendre, acheter, location, annonces ariana, petites annonces ariana, immobilier, maison, locations de vacances en Tunisie, petites annonces Tunisie, Tunisie annonces, site pour les petites annonces, sites Tunisiens