 |
|
|
|
Bienvenue sur Tunisie Annonce. > Vous n'êtes pas connecté. |
|
 |
|
|
 |
|
|
|
| [Réf:3438839] S2 sur plan avec terrase |
|
| Catégorie |
Offres > Vente > Appart. 2 pièces |
|
| Localisation |
Tunisie > Ariana > La Soukra > La Soukra |
|
| Adresse |
nouvelle soukra |
|
| Surface |
90 m² |
|
| Prix |
360 000 Dinar Tunisien (TND)
|
|
| Texte |
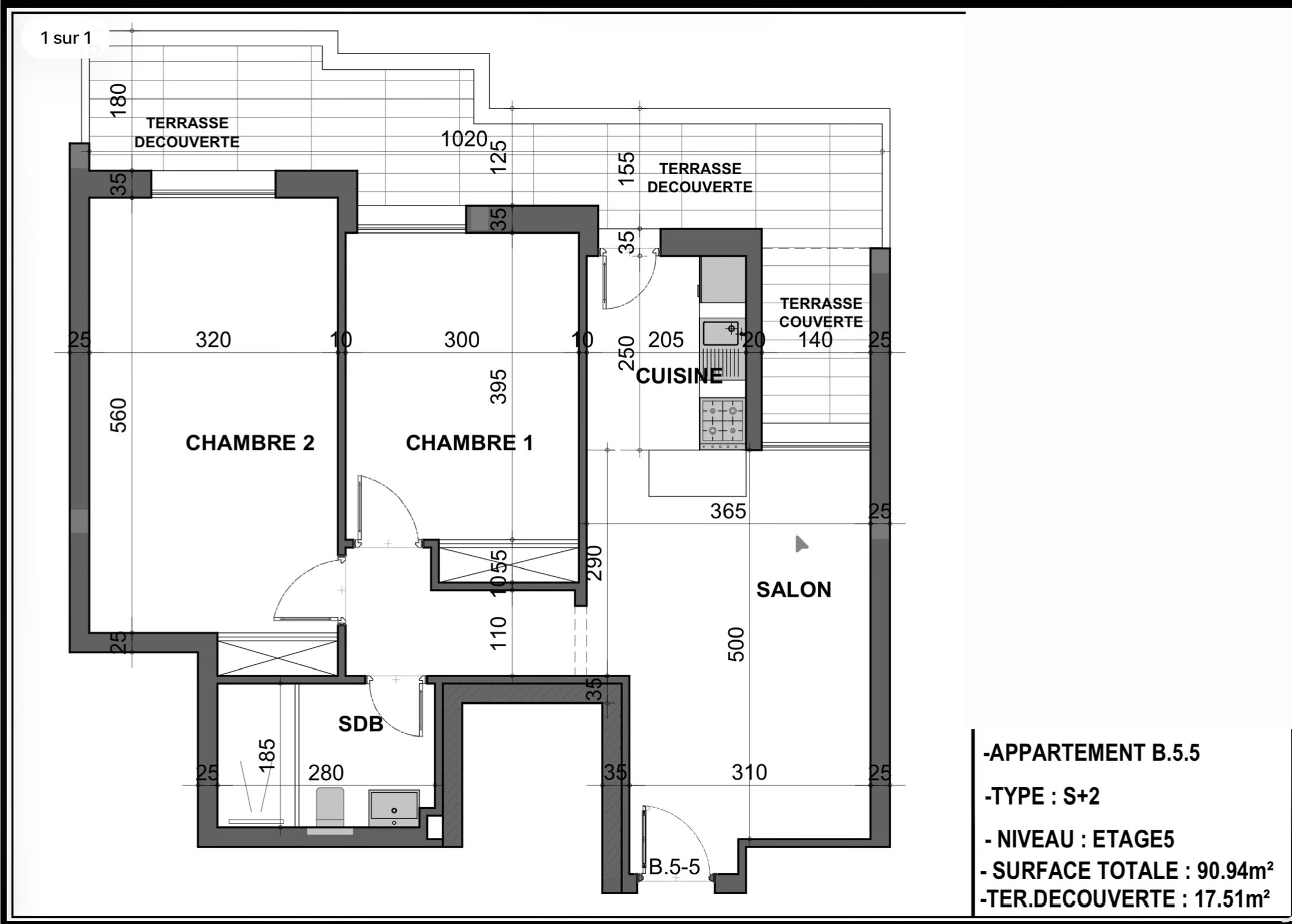
dans une résidence neuve en cours de construction, à la nouvelle soukra, un appartement s+2 est proposé à la vente sur plan. situé au 5eme étage, ce bien offre une conception moderne et un confort haut standing.
l’appartement se compose d’un salon lumineux avec cuisine ouverte, de deux chambres et d’une salle de douche. la surface totale est de 90,94 m², complétée par une terrasse de 17,51 m² qui longe l’ensemble de l’appartement et offre un espace extérieur agréable et fonctionnel.
un parking en sous-sol est disponible en supplément au prix de 25 000 tnd.
cet appartement représente une excellente opportunité d’investissement dans un quartier en plein développement, alliant modernité, accessibilité et qualité de vie.
pour plus de détails ou pour réserver, n’hésitez pas à me contacter. |
|
| Insérée le |
02/12/2025 |
Modifiée le |
10/03/2026 |
|
|
|
|
|
Autres annonces dans la même catégorie
|
| | dans une résidence neuve en cours de construction, à la nouvelle soukra, un appartement s+2 est proposé à la vente sur plan. situé au 5eme étage, ce bien offre une conception moderne et un confort hau ... |
| | Ariana - La Soukra - La Soukra | 10/03/2026 15:45 |
|
| | | une luxueuse villa située dans un quartier résidentiel et très prisé à sidi fraj, la soukra. au rdc, on trouve un hall d’entrée, un grand salon, deux séjours, une salle à manger, une cuisine équipée, ... |
| | Ariana - La Soukra - La Soukra | 10/03/2026 13:36 |
|
| | S2 à la soukra | 370 000 Dinars | | Immobilier - Offres - Vente - Appart. 3 pièces |
| | l'agence immobilière good life vous propose à la vente un s+2 à la soukra côté carrefour express.
cet appartement de 143 m² au 7ème étage et dernier étage, se compose d’un spacieux hall d’entrée, d’u ... |
| | Ariana - La Soukra - La Soukra | 10/03/2026 13:20 |
|
| | | une pépite s+1 d'un superficie de 68 m² et d'une terasse , situé à soukra chotrana 1 , dans une petite residence r+2.
cet appartement au deuxiéme étage, avec ascenseur, se compose d'une entrée ,une ... |
| | Ariana - La Soukra - Chotrana 1 | 10/03/2026 13:11 |
|
| | | un appartement s+3 au rez de chausée , d’une résidence sécurisée et gardée à chotrana 1, est accessible par ascenseur du sous sol .
dès l’entrée, vous découvrirez un hall avec dressing ,grand salon ... |
| | Ariana - La Soukra - La Soukra | 10/03/2026 13:06 |
|
|
|
| Vente Appart. 2 pièces en Tunisie |
| cache : 47,55 min - Details : 0 min |
|
|
|
|
 |
|
VOus pouvez passer vos annonces sur tunisie annonce, annonces Tunisie, petites annonces Tunisie, Tunisie immobilier, Tunisie annonces, passer annonce gratuite, petites annonces, passer une annonce, annonces immobilier, location, vente , achat, maison, appartement, louer, vendre, acheter, location, annonces ariana, petites annonces ariana, immobilier, maison, locations de vacances en Tunisie, petites annonces Tunisie, Tunisie annonces, site pour les petites annonces, sites Tunisiens
|