tunisie ecole e12c
Bienvenue sur Tunisie Annonce. > Vous n'êtes pas connecté.
Accueil >Annonces Immobilier >Local commecial nouvelle madina3 à Nouvelle Medina
[Réf:3428593] Local commecial nouvelle madina3
Catégorie Offres  > Vente  > Surfaces
Localisation Tunisie  > Ben arous  > Nouvelle Medina  > Nouvelle Medina
Adresse résidence maya nouvelle madina 3
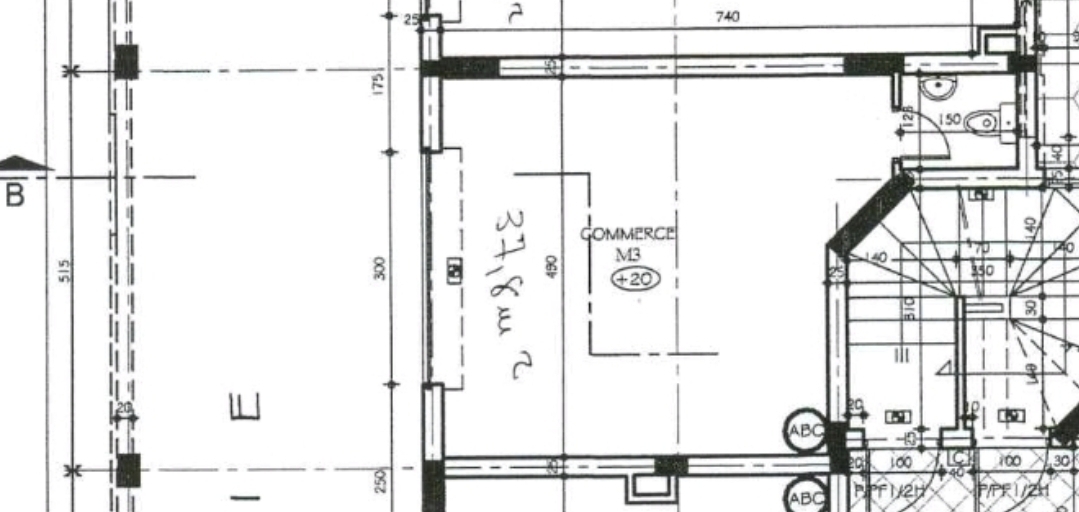
Surface 38 m² 
Prix 100 000 Dinar Tunisien (TND)  Convertir
Texte à vendre, local commercial neuf, jamais exploité, situé dans la résidence maya à nouvelle médina, dans un quartier calme et résidentiel.

le local fait 37,8 m², avec une façade de 5 mètres donnant sur la rue et une galerie à l’avant, offrant un espace supplémentaire exploitable.

✅ atouts :

emplacement stratégique, facilement accessible

immeuble moderne et bien entretenu.

idéal pour toute activité commerciale ou professionnelle

une belle opportunité d’investissement ou pour démarrer votre projet.
Insérée le 04/10/2025 Modifiée le 12/10/2025
Les Photos
Nouvelle Medina Nouvelle Medina Vente Surfaces Local commecial nouvelle madina3
Nouvelle Medina Nouvelle Medina Vente Surfaces Local commecial nouvelle madina3
Nouvelle Medina Nouvelle Medina Vente Surfaces Local commecial nouvelle madina3
  Vente Surfaces Local commecial nouvelle madina3 Nouvelle Medina  
Contact : Particulier
Actions
260 000 Dinars
Immobilier - Offres - Vente - Appart. 2 pièces
la méditerranée immobilière vous propose à la vente un appartement s2 situé au 2éme étage dans une résidence sécurisée a madina jadida cet appartement dispose d'un salon spacieux et lumineux une cuisi ...
260 000 Dinars
Immobilier - Offres - Vente - Maisons
la mediterranee immobiliere vous propose ala vente un appartement s2 situe au 2eme etage dans une reesidence sécurisee a madina jadida cet appartement dispose d un salon spacieux et lumineux une cuisi ...
260 000 Dinars
Immobilier - Offres - Vente - Appart. 2 pièces
la méditerranée immobilière vous propose à la vente un appartement s+2 situé au 2éme étage dans une résidence sécurisée a madina jadida cet appartement dispose d'un salon spacieux et lumineux une cuis ...
340 000 Dinars
Immobilier - Offres - Vente - Maisons
une coquette villa se compose de trois chambres un salon une salle de bain et deux cuisines très propre libre de suite emplacement tout pres de l hopital yesminette et de la route principale .  ...
320 000 Dinars
Immobilier - Offres - Vente - Appart. 4 pièces
a vendre villa s4 moderne à la nouvelle médina situation idéale : quartier calme et résidentiel, proche de toutes commodités. cette villa récente bâtie sur un terrain de 200 m2 combine confort, es ...
Vente Surfaces en  Tunisie
cache : 57,65 min - Details : 0 min
VOus pouvez passer vos annonces sur tunisie annonce, annonces Tunisie, petites annonces Tunisie, Tunisie immobilier, Tunisie annonces, passer annonce gratuite, petites annonces, passer une annonce, annonces immobilier, location, vente , achat, maison, appartement, louer, vendre, acheter, location, annonces ariana, petites annonces ariana, immobilier, maison, locations de vacances en Tunisie, petites annonces Tunisie, Tunisie annonces, site pour les petites annonces, sites Tunisiens