tunisie ecole e12c
Bienvenue sur Tunisie Annonce. > Vous n'êtes pas connecté.
Accueil >Annonces Immobilier >Bureau h7 de 233 m berges du lac 1 à Berge Du Lac
[Réf:3418516] Bureau h7 de 233 m berges du lac 1
Catégorie Offres  > Location  > Autre
Localisation Tunisie  > Tunis  > La Marsa  > Berge Du Lac
Surface 233 m² 
Prix 5 435 Dinar Tunisien (TND)  Convertir
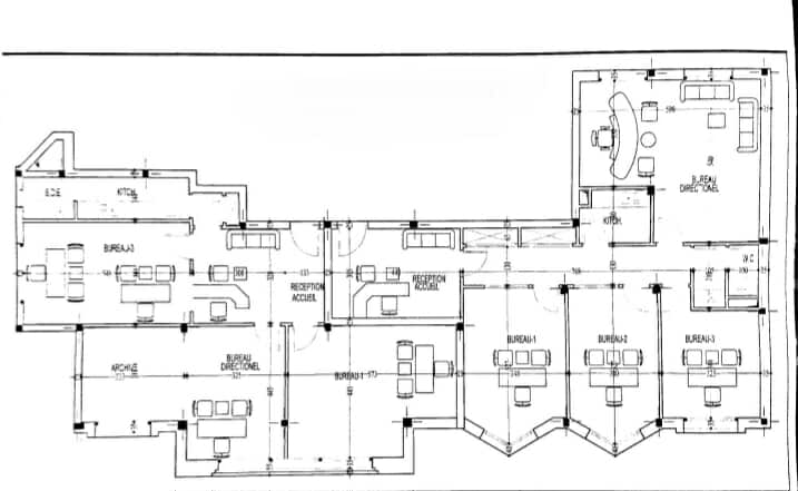
Texte la maison de l'immobilier vous propose à la location un bureau spacieux et en excellent état, idéalement situé aux berges du lac 1.

situé au premier étage d’une résidence exclusivement professionnelle avec ascenseur, ce bureau de 233 m² se compose de :

un grand hall d’accueil

quatre grandes pièces polyvalentes

trois bureaux indépendants

deux kitchenettes

deux points d’eau

très lumineux, ce local est équipé du câblage réseau et d’un système de climatisation centralisée, offrant un cadre de travail confortable et fonctionnel.
Insérée le 08/08/2025 Modifiée le 02/04/2026
Les Photos
La Marsa Berge Du Lac Location Autre Bureau h7 de 233 m berges du lac 1
  Location Autre Bureau h7 de 233 m berges du lac 1 La Marsa  
Contact : Particulier
Actions
1 300 Dinars
Immobilier - Offres - Location - Appart. 2 pièces
a louer un appartement s+2 au troisièmes étage dans une résidence bien gardé et securisé a jardins de l aouina. composé d'une grande salon, deux chambres a couchées, une cuisine bien agence avec un sé ...
950 Dinars
Immobilier - Offres - Location - Appart. 1 pièce
a louer un appartement s+1 propre situé a l aouina prêt de toutes les commodités de la vie dans une residence bien gardé et sécurisée au 5éme etage avec double ascenseurs. composé d'une salon,une cha ...
2 500 Dinars
Immobilier - Offres - Location - Duplex
à louer un agréable duplex s+3 avec terrasse et jardin à gammarth supérieur. le rez-de-chaussée offre un espace de vie confortable comprenant un salon et une salle à manger ouvrant sur le jardin, une ...
1 900 Dinars
Immobilier - Offres - Location - Appart. 2 pièces
agence immobilière le carré 9 vous propose à la location un appartement s+1 meublé d’une superficie de 55m² situé au 3ème étage d’une résidence gardée et sécurisée aux berges du lac 2. l’appartemen ...
2 400 Dinars
Immobilier - Offres - Location - Appart. 1 pièce
agence immobilière le carré 9 vous propose à la location un coquet appartement s1 richement meublé situé au 4ème étage d'une résidence gardée et sécurisée aux berges du lac 2 et qui se compose comme s ...
Location Autre en  Tunisie
cache : 54,59 min - Details : 0 min
VOus pouvez passer vos annonces sur tunisie annonce, annonces Tunisie, petites annonces Tunisie, Tunisie immobilier, Tunisie annonces, passer annonce gratuite, petites annonces, passer une annonce, annonces immobilier, location, vente , achat, maison, appartement, louer, vendre, acheter, location, annonces ariana, petites annonces ariana, immobilier, maison, locations de vacances en Tunisie, petites annonces Tunisie, Tunisie annonces, site pour les petites annonces, sites Tunisiens