tunisie ecole e12c
Bienvenue sur Tunisie Annonce. > Vous n'êtes pas connecté.
Accueil >Annonces Immobilier >Menchar hammamet à Hammamet
[Réf:3438291] Menchar hammamet
Catégorie Offres  > Terrain
Terrain nu
Localisation Tunisie  > Nabeul  > Hammamet  > Hammamet
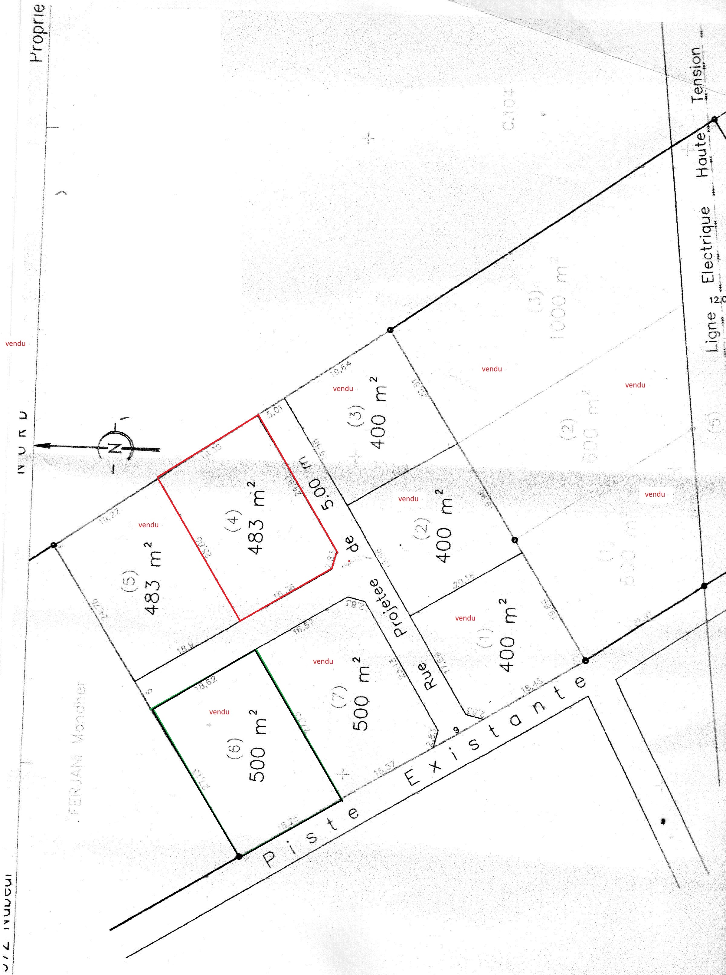
Adresse menchar hammamet
Surface 483 m² 
Prix 95 000 Dinar Tunisien (TND)  Convertir
Texte a vendre terrain menchar 483 m2 sur deux facades entouree des villa menchar a 8 km de hammamet
Insérée le 29/11/2025 Modifiée le 29/11/2025
Les Photos
Hammamet Hammamet Terrain Terrain nu Menchar hammamet
Hammamet Hammamet Terrain Terrain nu Menchar hammamet
Hammamet Hammamet Terrain Terrain nu Menchar hammamet
  Terrain Terrain nu Menchar hammamet Hammamet  
Contact : Particulier
Actions
322 000 Dinars
Immobilier - Offres - Terrain - Terrain nu
je vous offre un lot de terrain constructible côté hôtel khalifa, bonne voisinage trois cent métre de la plage, papiers en règle, pour plus d'informations merci de contacter hamadi ...
95 000 Dinars
Immobilier - Offres - Terrain - Terrain nu
a vendre terrain menchar 483 m2 sur deux facades entouree des villa menchar a 8 km de hammamet ...
78 000 Dinars
Immobilier - Offres - Terrain - Terrain agricole
particulier vend terrain de 312 m² (14/22)à hammamet sud à 1,7 km de yasmine hammamet et 5 min de la plage avec titre foncier,eau et électricité disponibles.tous les papiers en règle,agence s'abstenir ...
468 000 Dinars
Immobilier - Offres - Terrain - Terrain nu
à vendre chez green immobilière, un terrain de 468 m² à hammamet zone théâtre municipale hammamet avec deux façades donnant sur une route goudronnée ce terrain offre un emplacement stratégique ...
330 000 Dinars
Immobilier - Offres - Terrain - Terrain nu
à vendre chez green immobilière, un terrain de 366 m² à hammamet nord cité diamond avec une vu dégagé sur mer ouvrant deux façades ce terrain offre un emplacement stratégique idéal pour la const ...
Terrain Terrain nu en  Tunisie
cache : 3,79 min - Details : 103,704033333333 min
VOus pouvez passer vos annonces sur tunisie annonce, annonces Tunisie, petites annonces Tunisie, Tunisie immobilier, Tunisie annonces, passer annonce gratuite, petites annonces, passer une annonce, annonces immobilier, location, vente , achat, maison, appartement, louer, vendre, acheter, location, annonces ariana, petites annonces ariana, immobilier, maison, locations de vacances en Tunisie, petites annonces Tunisie, Tunisie annonces, site pour les petites annonces, sites Tunisiens